フジパレスあびこ駅北Ⅱ番館

5.85万円~7.4万円 管理/共益費 5,300円

大阪府大阪市住吉区苅田2丁目

地下鉄御堂筋線「長居」駅徒歩7分

地下鉄御堂筋線「あびこ」駅徒歩7分

阪和線「我孫子町」駅徒歩10分

価格
5.85万円~7.4万円 管理/共益費 5,300円
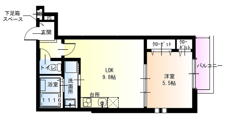
間取り/面積
1K~1LDK/27.51㎡~36.10㎡
所在地
大阪府大阪市住吉区苅田2丁目
築年
2026年5月(予定)
駐車
近隣
交通

地下鉄御堂筋線長居」駅 徒歩7分

地下鉄御堂筋線あびこ」駅 徒歩7分

阪和線我孫子町」駅 徒歩10分

フジパレスあびこ駅北Ⅱ番館の基本情報

物件名
フジパレスあびこ駅北Ⅱ番館
価格
5.85万円~7.4万円
管理/共益費
5,300円
築年月
2026年5月(予定)
総戸数
-
所在地
大阪府大阪市住吉区苅田2丁目
交通

地下鉄御堂筋線長居」駅 徒歩7分

地下鉄御堂筋線あびこ」駅 徒歩7分

阪和線我孫子町」駅 徒歩10分

フジパレスあびこ駅北Ⅱ番館の詳細情報

設備条件
  • 駐輪場
  • 敷地内ごみ置き場
  • CATV
  • インターネット対応
  • オートロック
  • 宅配ボックス
  • 防犯カメラ
  • 24時間ゴミ出し可
設備(その他)
    -
駐車場/月額
近隣/18,000円 200m
用途地域
-
戸数
- / -
取引態様
仲介
備考
フジパレスあびこ駅北Ⅱ番館
『あびこ住まい』は大阪市住吉区、東住吉区だけでなく、大阪府全域の物件を取り扱っております☆

『あびこ住まいの特徴』

①地域密着、業界10年以上、経験豊富なスタッフが在籍中!!
・お客様のご納得いくお部屋探しを全力でサポートします。
・実際に住んでみてわかることまでお伝えします。

②Google口コミは地域トップの評価をいただいております。
・弊社HPではお客様の声を写真とともに公開中!!

②インターネットに掲載できないお部屋も多数ご用意しております。
・YouTubeやインスタグラムで物件情報も定期的に発信してます。

③オンライン内覧、オンライン重説で来店せずに契約可能です。

④ご契約後のアフターフォローもしっかり行いますので、ご安心下さい。
家主様、管理会社との日々友好な関係を築くことに努め、連携してアフターサービスさせて頂きます。

⑤不要な費用はいただきません。
・家主様が実際には請求しない清掃代や防虫抗菌代などの項目を請求する不動産屋さんも多いようです。
・インターネットで見た他社の掲載物件も弊社で見積もりで最安値でご契約していただけます。
・他社様よりもお安くご契約を出来るよう交渉させていただきます。

【敷金礼金0円】
【デザイナーズマンション】
【家具家電付き物件】
【ペット飼育可能】
【ファミリー物件】
【法人契約】
【初期費用カード払い】
【新築マンション】
【初期費用が安いお部屋】
【審査が不安】
【ルームシェア希望】
【保証人無し】

お客様が希望のお部屋に出会えるようにスタッフ一同全力サポート宣言!!

長居、あびこ駅周辺でのお部屋探しは
地域密着の「あびこ住まい」

フジパレスあびこ駅北Ⅱ番館のコメント(おすすめポイント)

地下鉄御堂筋線【長居駅】に徒歩圏内、大阪市住吉区苅田2丁目「フジパレスあびこ駅北Ⅱ番館」の物件情報

お部屋探しに、とことんお付き合いする不動産屋を目指しています。
新生活に向け全力でサポートしますので、楽しいお部屋探しをぜひ当店で。
明るく元気なスタッフがお出迎え致しますので、お気軽にお声掛けくださいませ。

住吉区、東住吉区周辺のお部屋探しは「あびこ住まい」へお問い合わせください。

フジパレスあびこ駅北Ⅱ番館で募集中の物件

  1. 1階

    9.69坪 (32.04㎡)

    6.55万円(6759.55円/坪)

  2. 2階

    8.32坪 (27.51㎡)

    5.85万円(7031.25円/坪)

  3. 2階

    9.69坪 (32.04㎡)

    6.65万円(6862.75円/坪)

  4. 2階

    10.92坪 (36.10㎡)

    7.3万円(6684.98円/坪)

  5. 3階

    9.32坪 (30.83㎡)

    6.45万円(6920.6円/坪)

  6. 3階

    10.92坪 (36.10㎡)

    7.4万円(6776.56円/坪)

周辺施設

  • セブン-イレブン 大阪苅田2丁目店の画像

    コンビニエンスストア

    セブン-イレブン 大阪苅田2丁目店

    35m(1分)

  • ツルハドラッグ 住吉苅田店の画像

    ドラッグストア

    ツルハドラッグ 住吉苅田店

    36m(1分)

  • 住吉長居東郵便局の画像

    郵便局

    住吉長居東郵便局

    297m(4分)

  • コインランドリーデポ 住吉苅田店の画像

    コインランドリー

    コインランドリーデポ 住吉苅田店

    334m(5分)

  • ローソン 苅田三丁目店の画像

    コンビニエンスストア

    ローソン 苅田三丁目店

    346m(5分)

  • ライフ あびこ店の画像

    スーパー

    ライフ あびこ店

    349m(5分)

  • ファミリーマート 住吉苅田二丁目店の画像

    コンビニエンスストア

    ファミリーマート 住吉苅田二丁目店

    376m(5分)

  • スギドラッグ あびこ東号315店の画像

    ドラッグストア

    スギドラッグ あびこ東号315店

    394m(5分)

  • chocoZAP 住吉苅田三丁目の画像

    ジム

    chocoZAP 住吉苅田三丁目

    429m(6分)

  • キャンドゥ あびこ駅前店の画像

    生活雑貨店

    キャンドゥ あびこ駅前店

    556m(7分)

  • 万代 苅田店の画像

    スーパー

    万代 苅田店

    585m(8分)

  • 花里温泉の画像

    銭湯

    花里温泉

    598m(8分)

  • 関西スーパー 長居店の画像

    スーパー

    関西スーパー 長居店

    656m(9分)

  • ほっかほっか亭 あびこ中央店の画像

    弁当

    ほっかほっか亭 あびこ中央店

    675m(9分)

  • 苅田どんぐり公園の画像

    公園

    苅田どんぐり公園

    715m(9分)

  • あびこ病院の画像

    総合病院

    あびこ病院

    809m(11分)

  • 関西医療学園専門学校の画像

    専門学校

    関西医療学園専門学校

    992m(13分)

  • 住吉区役所の画像

    市役所・区役所

    住吉区役所

    1444m(19分)

  • ダイレックス 矢田南店の画像

    ディスカウントショップ

    ダイレックス 矢田南店

    1749m(22分)

近隣の物件

  1. 大阪市住吉区長居2丁目

    1K (20.00㎡)

    3.3万円

  2. 大阪市住吉区杉本2丁目

    1LDK (33.31㎡)

    6.7万円

  3. 大阪市住吉区長居東4丁目

    1K (21.00㎡)

    4.5万円

  4. 大阪市住吉区苅田7丁目

    1R (26.00㎡)

    3.7万円

よく見られている物件

  1. 大阪市住吉区苅田2丁目

    1R (15.39㎡)

    2.3万円

  2. 大阪市住吉区長居東3丁目

    2DK (40.00㎡)

    4.5万円

  3. 大阪市住吉区上住吉2丁目

    2LDK (50.00㎡)

    6万円

  4. 大阪市住吉区杉本2丁目

    3LDK (55.00㎡)

    6.5万円

フジパレスあびこ駅北Ⅱ番館

お気軽にお問い合わせください

無料お問い合わせ

あびこ住まい

06-6655-1670

10:00~19:00

(休:水曜日)